最全橱柜知识,又能省一笔啦!
2023-04-19 23:50:29
橱柜高度橱柜地柜高度(含台面)在80cm左右比较合适;调整脚高度为10cm,台面高度4cm,柜体高度65cm,略高一些为71.5cm;橱柜高度=调整脚+柜体+台面一般选择两种:油烟机悬挂标准油烟机悬挂位置应距地柜(不含台面)52cm/62cm,超过这高度,油烟机效能无效吊柜高度一般为65cm/78c 橱柜高度 油烟机悬挂 吊柜高度 橱柜深度 调整脚高度 厨房布局 选合适的油烟机 墙面宽度超过2.5m 墙面高度超过3.5m
橱柜地柜高度(含台面)在80cm左右比较合适;
调整脚高度为10cm,台面高度4cm,柜体高度65cm,略高一些为71.5cm;
橱柜高度=调整脚+柜体+台面
一般选择两种:


标准油烟机悬挂位置应距地柜(不含台面)52cm/62cm,超过这高度,油烟机效能无效


一般为65cm/78cm/91cm,根据厨房吊顶高度确定,如果厨房吊顶高于2.3m,可以考虑91cm。



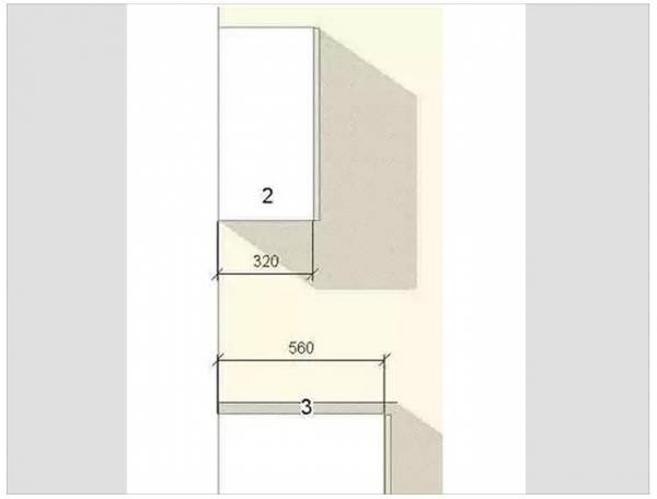
橱柜地柜深度(含台面)一般在60.5cm左右,地柜深度为56cm,吊柜深度为32cm。


调整脚的高度8cm—22cm都可;
踢脚板高度16cm—18cm更好看;
滚筒洗衣机的高度一般为82cm或86cm,加上台面的4cm,总高度为86—90cm

Tip No.1
灶具左右应保证至少30cm以上的空间,最好能有50cm

Tip No.2
靠近灶具的地方可以用抽屉或调料蓝,以便于拿取工具

Tip No.3
不要在靠近拐角的地方安装抽屉。

Tip No.4
地柜尺寸需考虑墙体平整度误差。留空距离建议3cm以上,最好在5-6cm。

如果厨房长度超2.5m,建议使用75cm或85cm中式传统深罩机。
油烟机宽度占墙面长度的0.382比较合适。

如果使用欧式烟机,上柜的空间会显得相对局促。


如果使用欧式烟机,上柜的空间会显得相对局促。

